Overview
- Updated On:
- February 24, 2026
- 3 Bedrooms
- 4 Bathrooms
- 2,701 ft2
- Year Built:2027
Description
3 Bedroom Luxury Townhome – Ayi Mensah, Greater Accra
Located in the serene hills of Ayi Mensah, this well-designed 3-bedroom townhome offers contemporary comfort within a secure and thoughtfully planned gated community.
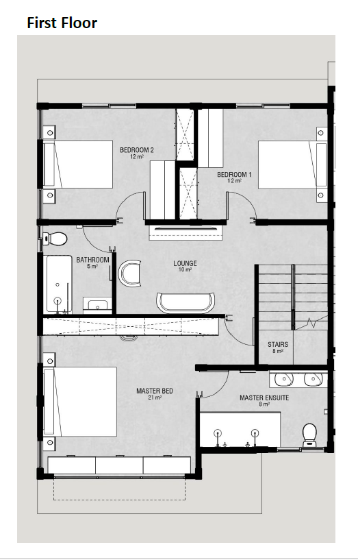
With a floor area of 251 sqm, the home is carefully arranged to balance spacious living with practical functionality. The layout includes three generously sized bedrooms, two bathrooms, two powder rooms, and a staff quarters, making it ideal for families or homeowners who value flexibility and convenience.
The open-plan living and dining areas create a bright and welcoming atmosphere, flowing naturally into a modern kitchen fitted with engineered stone countertops and quality cabinetry. Large windows enhance natural light and ventilation, while a covered rooftop terrace provides an inviting space for relaxation or entertaining.
Additional features include built-in wardrobes, aluminium window frames, large format internal and external doors, glass balustrades, and independent on-site power and water systems to ensure uninterrupted comfort.
Positioned just minutes from the N4 highway, this home offers quick access into Accra while maintaining the privacy and tranquility of hillside living.
An excellent opportunity for families and investors seeking secure, modern living in one of Greater Accra’s emerging prime residential locations.
Contact OneAfrica Properties for availability and private viewing arrangements.
- Principal and Interest
- Property Tax
- HOA fee
